Property Description
Acropolis Residences in Talamban, Cebu City
Acropolis Residences in Talamban is a residential development consisting of 3-storey townhouses. This development offers 229 exclusive house and lot units.
Location:
Kauswagan Road, Brgy. San Jose, Talamban, Cebu City (Just across North General Hospital)
OWN YOUR DREAM HOME WITH JUST 10% EQUITY
Acropolis Residences is now accredited with top banks, offering 90% loan-to-value financing!
Secure your spot in this exclusive community while units last. With limited availability, now is the perfect time to invest in comfort, style, and convenience.
- Free Split-Type Aircon with Installation
- 5-Year Landers Membership
- Prime Location, Modern Design
Whether you’re looking for a new home or a smart investment, now is the perfect time to secure your unit.
- Along a major barangay road
- 8 to 10-meter wide internal roads for smooth access
- Complete power and water infrastructure (VECO)
- Strategically placed fire hydrants and utility access
Last 4 Units Left at Acropolis Residences!
- Monthly equity starts at ONLY Php 21,943.21 – payable in 36 months
- Loanable to Pag-Ibig Fund
- The only affordable house with 2 car parks
- Walking distance to Cebu North General Hospital
- Just 7 minutes away from USC Talamban Campus
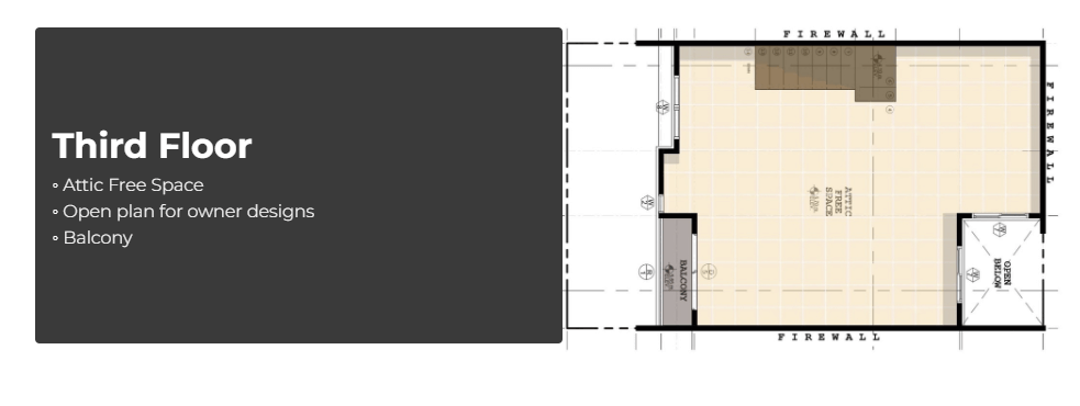
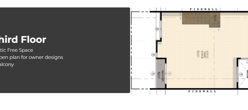
3-Storey Townhouse
- LOT AREA: 60 sqm
- FLOOR AREA: 106 sqm
- 3 Bedrooms
- 2 Parking Lots
- 2 Bathrooms
- 2 Balconies
- 1 Living Room
- 1 Powder Room
- 1 Open-Space (38 sqm – 3rd Floor)
Our advantages:
- 3 Bedroom – 2 Toilet & Bath
- Underground wiring system
- Finished unit with partition
- Perimeter fence
- Tiled Floors
- Bank & Pagibig Financing
Sample Computation
AVAILABILITY as of 2026 (ONLY FEW UNITS LEFT):
- Block 14 Lot 9
Lot area: 103 sqm
Floor area: 106 sqm
Total Contract Price: Php 10,496,588.04 - Sample Computation – Pag-Ibig:
TCP: Php 10,496,588.04
Reservation fee: Php 50,000
Equity: Php 4,446,588.04
Loanable: Php 6,000,000
30 Monthly Equity: Php 148,219.60
36 ME (Corners): Php 123,516.33
30 years: Php 38,293.03
25 years: Php 40, 930.16
20 years: Php 45,205.69
15 years: Php 52,795.37
10 years: Php 68,718.06
5 years: Php 118,045.57
- Block 7 Lot 4
Lot area: 92 sqm
Floor area: 106 sqm
Total Contract Price: Php 9,701,325.42 - Sample Computation – Pag-Ibig:
TCP: Php 9,701,325.42
Reservation fee: Php 50,000
Equity: Php 3,651,325.42
Loanable: Php 6,000,000
30 Monthly Equity: Php 121,710.85
36 ME (Corners): Php 101,425.71
30 years: Php 38,293.03
25 years: Php 40, 930.16
20 years: Php 45,205.69
15 years: Php 52,795.37
10 years: Php 68,718.06
5 years: Php 118,045.57
- Block 7 Lot 2
Lot area: 94 sqm
Floor area: 106 sqm
Total Contract Price: Php 9,836,827.54 - Sample Computation – Pag-Ibig:
TCP: Php 9,836,827.54
Reservation fee: Php 50,000
Equity: Php 3,786,827.54
Loanable: Php 6,000,000
30 Monthly Equity: Php 126,227.58
36 ME (Corners): Php 105,189.65
30 years: Php 38,293.03
25 years: Php 40, 930.16
20 years: Php 45,205.69
15 years: Php 52,795.37
10 years: Php 68,718.06
5 years: Php 118,045.57
- Block 10 Lot 11 – End Unit
Lot area: 116 sqm
Floor area: 106 sqm
Total Contract Price: Php 11,084,779.54 - Sample Computation – Pag-Ibig:
TCP: Php 11,084,779.54
Reservation fee: Php 50,000
Equity: Php 5,084,779.54
Loanable: Php 6,000,000
30 Monthly Equity: Php 167,825.98
36 ME (Corners): Php 139,854.99
30 years: Php 38,294.03
25 years: Php 40, 930.16
20 years: Php 45,205.69
15 years: Php 52,795.37
10 years: Php 68,718.06
5 years: Php 118,045.57 - Sample Computation – AUB:
Reservation fee: Php 50,000
Equity: Php 1,108,477.95
Loanable: Php 9,976,301.59
Total Equity: Php 1,058,477.95
30 Monthly Equity: Php 35,282.60
20 Monthly Equity: Php 52,923.90
36 ME (Corners): Php 29,402.17 - Sample Computation – Chinabank:
Reservation fee: Php 50,000
Equity: Php 1,662,716.93
Loanable: Php 9,422,062.61
Total Equity: Php 1,612,716,93
30 Monthly Equity: Php 53,757.23
36 ME (Corners): Php 44,797.69
Partner Banks:
- AUB
- RCBC
- STERLING BANK
Enjoy easier approvals, flexible terms, and minimal equity—making your dream home more within reach than ever!
Amenities:
- Swimming Pool
- Clubhouse
- Basketball Court
- Playground
Nearby Establishments:
- North General Hospital
- 7-11 Convenience Stores
- Hardware Stores
- Gaisano Mall
- Robinsons Mall
- Maria Montessori International School
- Ateneo de Cebu – Sacred Heart
- San Carlos University Talamban
- University Of Cebu
CONSTRUCTION UPDATES:
For inquiries, site visit, reservation, project assistance, please call or message:
Betty Marquez
Property Specialist
Phone: +63 949-572-5099
Landline: 239-4078
ABLC Realty
DHSUD No. CVRFO-B-12/18-0490 valid until Dec 2026
Under: Lilibeth S Marquez, Real Estate Broker
PRC Lic No. 0020487
Follow us on Facebook: www.fb.com/ABLCRealty





















































































